Trezorové dveře TD 90 M, II.BT
| Bezpečnostní třída | bezpečnostní třída II (ČSN EN 1143-1) |
| Výrobce: | T-SAFE |
| Dostupnost: | 1-2 týdny |
|---|---|
| Cena s DPH | 94 001 Kč |
| Cena bez DPH | 77 686,78 Kč |
| Vnější rozměry (mm) | Vnitřní rozměry (mm) | Objem | Hmotnost | Police | ||||
|---|---|---|---|---|---|---|---|---|
| V | Š | H | V | Š | H | (l) | (kg) | (ks) |
| 1950 | 1035 | 150 | 1950 | 900 | 220 | |||
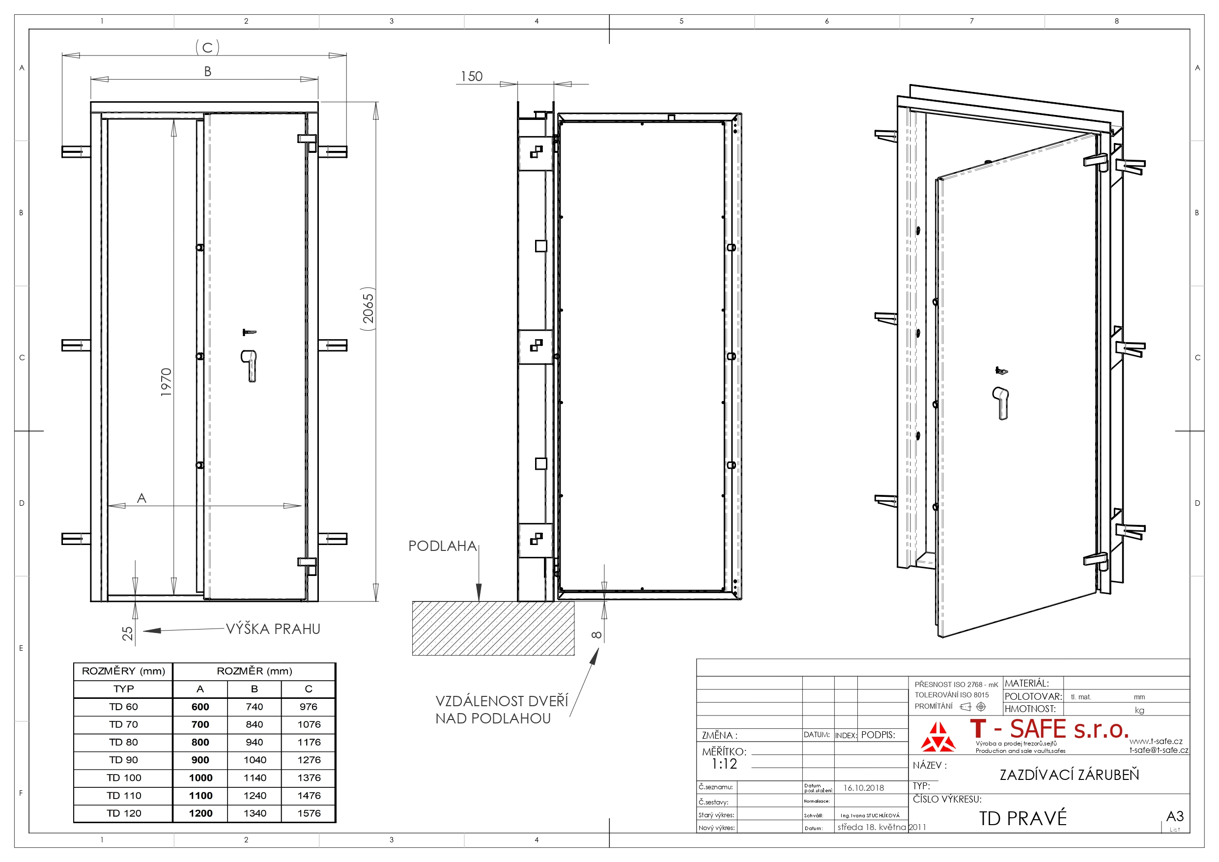
Trezorové dveře TD 90 - II. bezpečnostní třída
Tezorové dveře jsou určeny především pro ochranu objektů a trezorových místností, které mají být spolehlivě a bezpečně zajištěny. Vyrábějí se jako jednokřídlé (TD), a dvoukřídlé (TDD), případně dle požadavku zákazníka. Dveře se vyrábění i s otvíráním do chráněného prostoru (TDV). Součástí dveří jsou i zárubně v provedení k zazdění nebo k ukotvení ocelovými šrouby.
Uzavírací systém je tvořen třístranným rozvorovým mechanismem ovládaným klikou, který je v uzamčeném stavu zajištěn mechanickým trezorovým klíčovým zámkem (KL), nebo lze použít mechanický kombinační (MC) nebo elektronický zámek (EL).
Na přání lze dveře upravit pro možnost otevírání klikou z obou stran, umožnit nouzové odemykání a zamykání i z vnitřní strany.
Specifikace TD 90:
- zámek na klíč + klika vně
- Základní barevné provedení -strukturní barva RAL 9002 (šedobílá) nebo RAL 9005 (černá)
- II. bezpečnostní třída
- vnější míry udávají pouze rozměr korpusu, kování a zámky přesahují o cca 30 - 50 mm
Trezorové dveře TD, TDD a TDV a jejich certifikace (obecně):
Trezorové dveře jsou certifikovány dle normy ČSN EN 1143-1+A1 pro bezpečnostní třídu I a získaly certifikát NBÚ ověřující způsobilost technických prostředků typu 3 (PŘÍSNĚ TAJNÉ). Trezorové dveře lze vyrobit v provedení splňujícím požadavky normy ČSN EN 1522 a ČSN EN 1523 pro zařazení do třídy balistické odolnosti FB4.
Modely trezoru
| Model | Vnější rozměry | Vnitřní rozměry | Obsah | Hmotnost | Police | ||||
|---|---|---|---|---|---|---|---|---|---|
| V | Š | H | V | Š | H | (l) | (kg) | (ks) | |
| Trezorové dveře TD 60 M, I.BT | 1950 | 735 | 150 | 1950 | 600 | 160 | |||
| Trezorové dveře TD 60 M, III.BT | 1950 | 735 | 150 | 1950 | 600 | x | |||
| Trezorové dveře TD 70 M, I.BT | 1950 | 835 | 150 | 1950 | 700 | 180 | |||
| Trezorové dveře TD 80 M, I.BT | 1950 | 935 | 150 | 1950 | 800 | 200 | |||
| Trezorové dveře TD 90 M, II.BT | 1950 | 1035 | 150 | 1950 | 900 | 220 | |||
| Trezorové dveře T-Safe varianty | 1950 | 1135 | 150 | 1950 | 1000 | 240 | |||
Parametry trezoru
| Přestavitelná police | 0 ks |
| Bezpečnostní třída | bezpečnostní třída II (ČSN EN 1143-1) |
| Certifikace dle NBÚ | přísně tajné |
| Odporové jednotky (RU) | 50/80 |
| Hotovost do | 1.200.000 Kč |
| Hmotnost | 220 kg |
| Vnější rozměry - výška | 1950 mm |
| Vnější rozměry - šířka | 1035 mm |
| Vnější rozměry - hloubka | 150 mm |
| Vnitřní rozměry - výška | 1950 mm |
| Vnitřní rozměry - šířka | 900 mm |
| Použití | trezorové místnosti |
| Zámkové vybavení | trezorový zámek na klíč |
| Barva | šedobílá nebo černá |
| Záruka | 24 měsíců |
| Výrobce: | T-SAFE |
Podobné položky
Trezorové dveře - TD 80
62 999 Kč
Trezorové dveře - TD 90
65 999 Kč
Trezorové dveře - TD 70
59 799 Kč
Certifikáty pro Trezorové dveře TD 90 M, II.BT
- 2018-katalog-tsafe-1804215217.pdf (4.39 MB)
- 2016-manual-tsafe-1606122500.pdf (482.64 kB)
